Ricerca

Appartamento in Vendita a Ascoli Piceno

Zona: Centro Storico

125 mq 7 Locali 3 Camere 1 Bagni

Classe energetica

G
Codice: 3637 € 410.000
Informazioni immobile

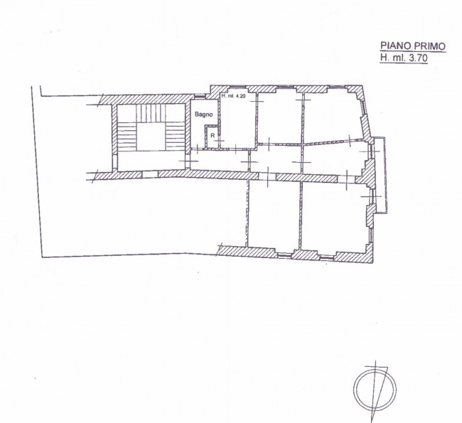
Ascoli Piceno, Piazza del Popolo, splendido Appartamento di mq 125 posto al piano primo di un antico palazzo dell'800 vincolato dalla sopraintendenza per beni ambientali e architettonici nei pressi dello storico "Caffè Meletti", la facciata del palazzo presenta l'aspetto tipico dei palazzi ascolani con l'inserimento di un rivestimento in pietra locale (travertino ascolano), altri importanti restauri furono effettuati nel 1923. Attualmente l'immobile è accatastato ufficio ma può essere trasformato per uso abitativo. Attraverso una splendida scalinata si accede al piano primo dove è posto l'Appartamento così diviso; ingresso, bagno, cucina abitabile, un ampio soggiorno con caratteristico terrazzino, tre ampie camere. Particolarità storiche interne, pavimento in graniglia originario dell'epoca e porte sempre dell'epoca.Ideale per struttura ricettiva di b&B.

Informazioni immobile
Codice: 3637
Contratto: Vendita
Tipologia: Appartamento
Regione: Marche
Provincia: Ascoli Piceno
Comune: Ascoli Piceno
Zona: Centro Storico
Prezzo: € 410.000 trattabili
Totale mq: 125 mq
Camere: 3
Bagni: 1
Locali: 7
Stato conservazione: Buono
Piano: 1
Piani totali: 2
Riscaldamento: Autonomo
Infissi: legno/vetro
Termosifoni: ghisa
Stato attuale: Libero al rogito
Disponibile: Si
Esposizione: sud/ovest/nord
Balconi: Presente
Cucina: Abitabile
Posizione: Centrale
Caratteristiche
Antenna Tv: Autonoma
Impianto Elettrico: A norma
Infissi in legno
Persiane
Nelle vicinanze
Palestre
Centri Benessere
Campi da Calcio
Complessi Sportivi
Campi da Tennis
Piste Ciclabili
Parchi Giochi
Trasporti Pubblici
Asilo
Scuole Elementari
Scuole Medie
Scuole Superiori
Bar
Uffici postali
Centri commerciali
Uffici comunali

Mappa immobile

Ultimo aggiornamento 05-12-2025